Prodej bytu 4+kk

Praha, Praha 6 , Vokovice , Tibetská      
Na vyžádání Mám zájem o nemovitost

Krásný prostorný byt 4+kk, balkon, garážové stání, v sousedství Divoké Šárky, Tibetská, Praha 6 Vokovice

ZÁKLADNÍ INFO
č. nabídky: 979303
vnitřní plocha: 155 m2
patro: 3. patro
parkování: Garáž
energetický štítek: C - Vyhovující
cena: Na vyžádání
PŘEDSTAVENÍ NEMOVITOSTI
Nabízíme velmi komfortní bydlení i pro větší rodinu v jednom z nejvyhledávanějších rezidenčních projektů „Terasy Červený Vrch“ v oblíbené čtvrti Prahy 6, ve Vokovicích.

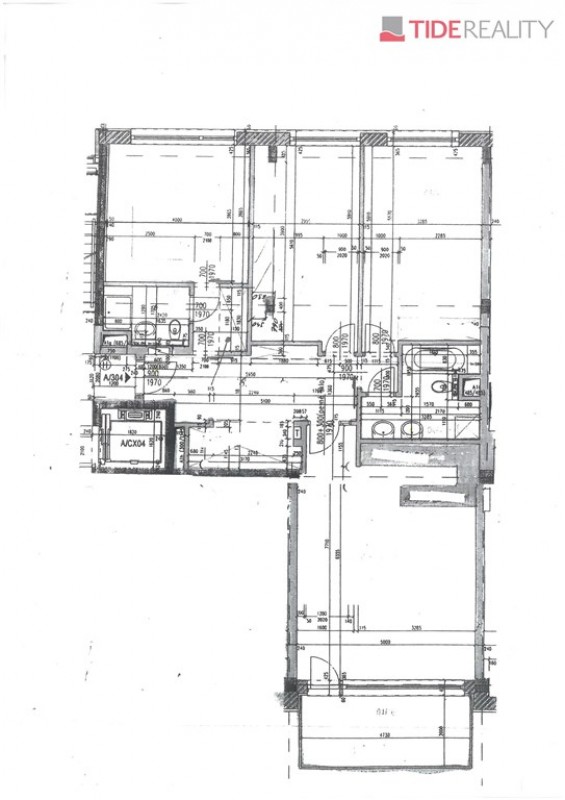
Tento prostorný byt 4+kk se nachází ve 4.NP (předposledním podlaží) domu, který sousedí s rozsáhlým lesoparkem Divoká Šárka. Disponuje podlahovou plochou 115,4 m2, balkonem o velikosti 10m2, dále komorou v 1.PP ( 6m2), 1 garážovým stáním. Před domem jsou rezervovaná další venkovní stání pro rezidenty.

Byt Vás hned při prvním setkání okouzlí pozitivní atmosférou, klidem, světlostí a hlavně praktickým dispozičním řešením.
Za bezpečnostními vstupními dveřmi vcházíte do předsíně (18m2) se samostatnou šatnou a s vestavěnou skříní. Z centrální chodby jsou vstupy do všech místností v bytě: do třech prostorných ložnic (18, 17 a 16m2), koupelen a dále do velmi světlého obývacího pokoje s kuchyní (34m2) propojeného s balkonem (2m x 4,8m), kam se vejdou i pohodlná křesílka a případně i gril. Všechny ložnice orientované na sever do zeleně nabízí uklidňující a ničím nerušený výhled do lesoparku a především klidný spánek při otevřeném okně. Tento byt má dále k dispozici 2 koupelny. Koupelna se sprchou, umyvadlem a WC se nachází u hlavní ložnice, ostatní pokoje (dětské pokoje) sousedí s koupelnou vybavenou vanou, dvěma umyvadly, WC a přípojkami na na pračku a sušičku. V celém bytě jsou dřevěné plovoucí podlahy, dř. EURO okna s vnitřními žaluziemi a klimatizace DAIKIN se splitovou jednotkou umístěnou v centrální chodbě a obývacím pokoji.

Lokalita v okolí ulice Tibetská v pražských Vokovicích je vyhledávaným místem k bydlení pro svůj klid, zeleň, perfektní občanskou vybavenost a výbornou dopravní dostupnost. V pěší vzdálenosti máte stanici metra Bořislavka, přírodní park Divoká Šárka, sportoviště, pro děti kvalitní mateřské i základní školy i střední školy (gymnázium Arabská je v přímém sousedství), obchody, restaurace i kavárny. Lokalita je také velmi oblíbená mezi zahraničními rezidenty, a to díky dostupnosti mezinárodních škol. Rychlé spojení s letištěm i centrem města je další z mnoha předností.

Byt je aktuálně pronajatý velmi spolehlivému nájemníkovi do 31.12.2026. Nemovitost se tedy prodává i s postoupením platné nájemní smlouvy a cena je tak včetně stávajícího nábytku a vybavení. V ceně je i garážové stání a komora.
SDÍLET

Kontaktovat makléře

Hana Hlavatá

Hana Hlavatá

makléř

+420 728 235 358
hana.hlavata@tide.cz

Mám zájem o více informací

Odeslat poptávku
Zpět na výpis nabídek

Chcete dostávat informace o novinkách
a speciálních slevách mezi prvními?

Zapište se jako odběratel našeho newsletteru a žádná nabídka Vám už neuteče.